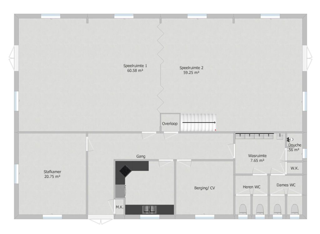
Onze blokhut is opgedeeld in 2 spelruimtes. Deze spelruimtes kunnen gecombineerd worden tot 1 grote ruimte door de schuifbare wand open te maken.

Onze blokhut is opgedeeld in 2 spelruimtes. Deze spelruimtes kunnen gecombineerd worden tot 1 grote ruimte door de schuifbare wand open te maken.
